Chandigarh Work in progress 2 10 janvier 2017 Par Thierry Catégorie:Publications / textes Cité de l’Architecture & du Patrimoine Chandigarh 50 ans après Le Corbusier Le devenir indien d’une ville moderne. Du 11 novembre 2015 au 29 février 2016 Palais de Chaillot, 45 Avenue du Président Wilson Exposition créée par la cité de l’Architecture & du Patrimoine Commissariat / Scénographie: Enrico Chapel, Thierry Mandoul et Rémi Papillault Artistes: Christian Barani, Bertrand Gauguet Dossier d’exécution et montage de l’exposition Navigation de l’article Précedent Post précédent Suivant Post suivant
Cité de l’Architecture & du Patrimoine
Chandigarh 50 ans après Le Corbusier
Le devenir indien d’une ville moderne.
Du 11 novembre 2015 au 29 février 2016
Palais de Chaillot, 45 Avenue du Président Wilson
Exposition créée par la cité de l’Architecture & du Patrimoine
Commissariat / Scénographie: Enrico Chapel, Thierry Mandoul et Rémi Papillault
Artistes: Christian Barani, Bertrand Gauguet
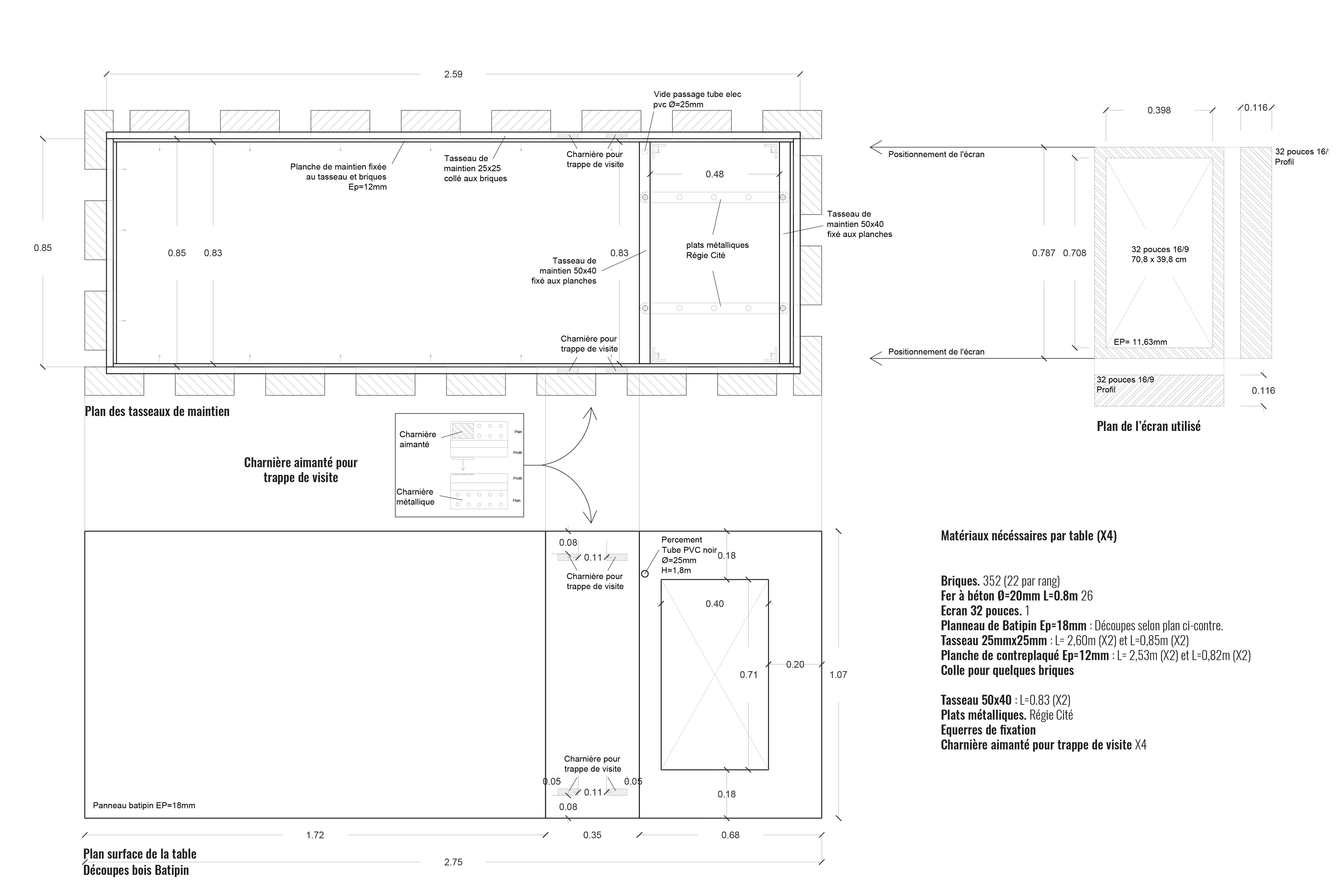
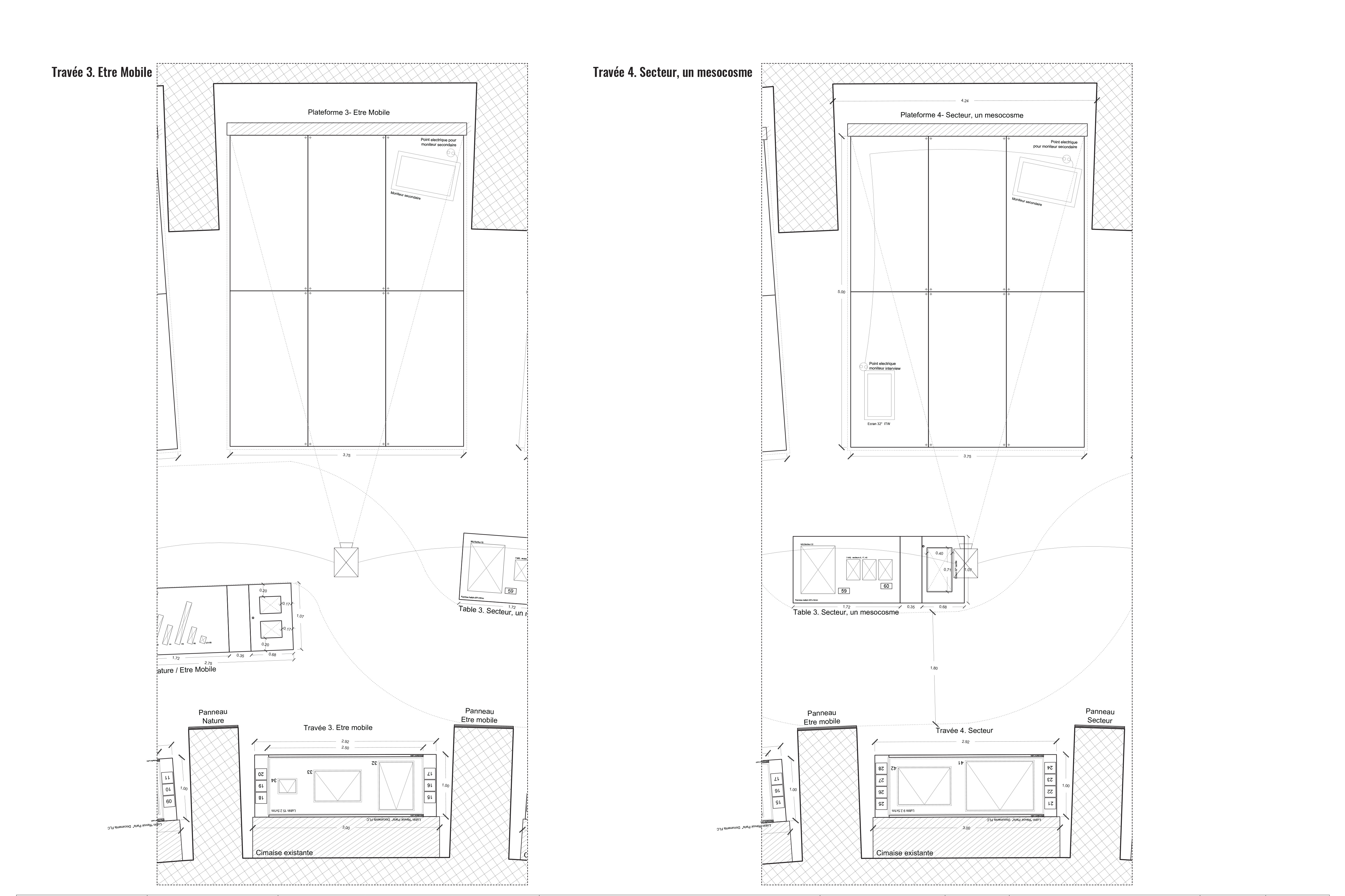
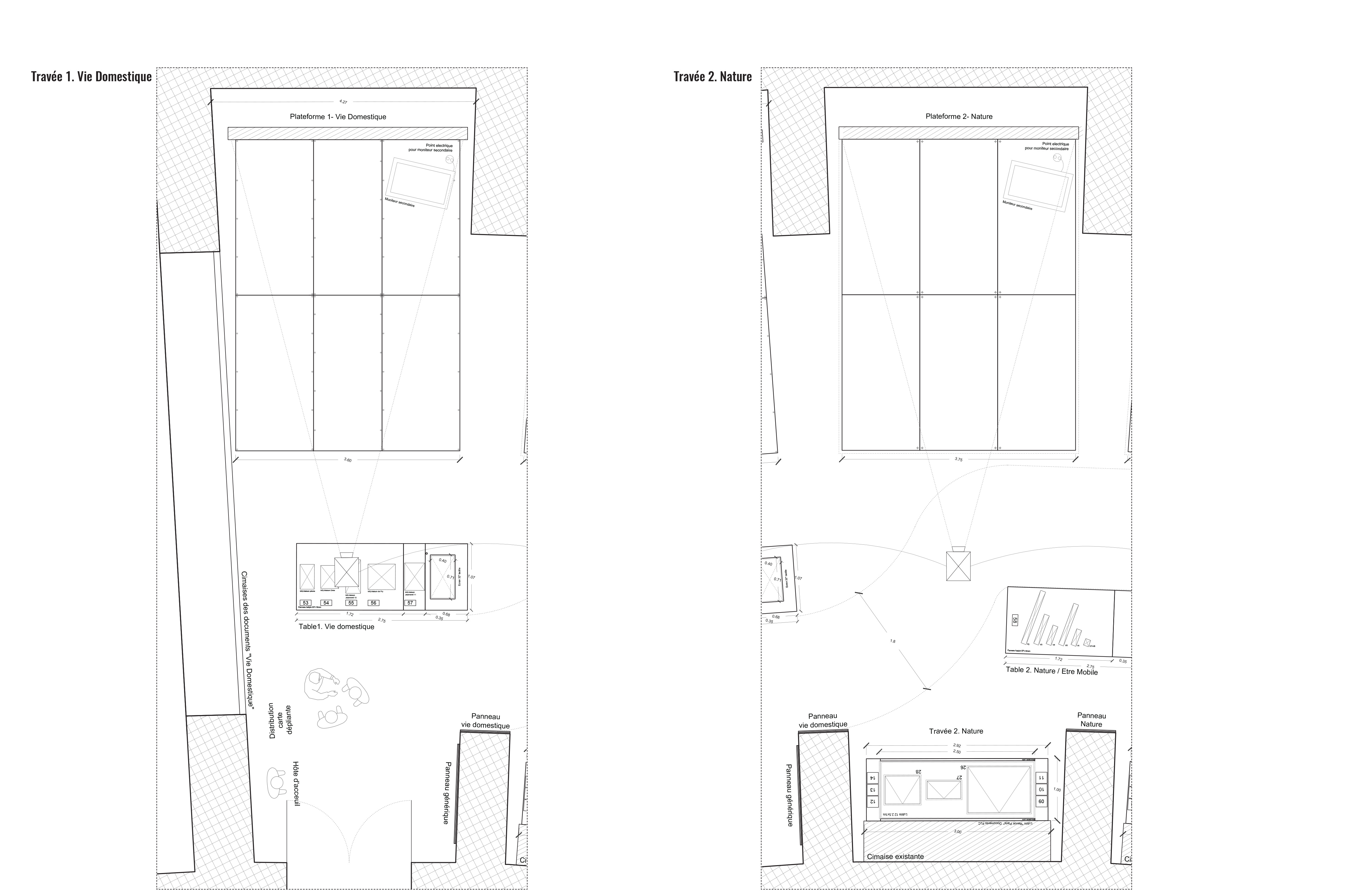
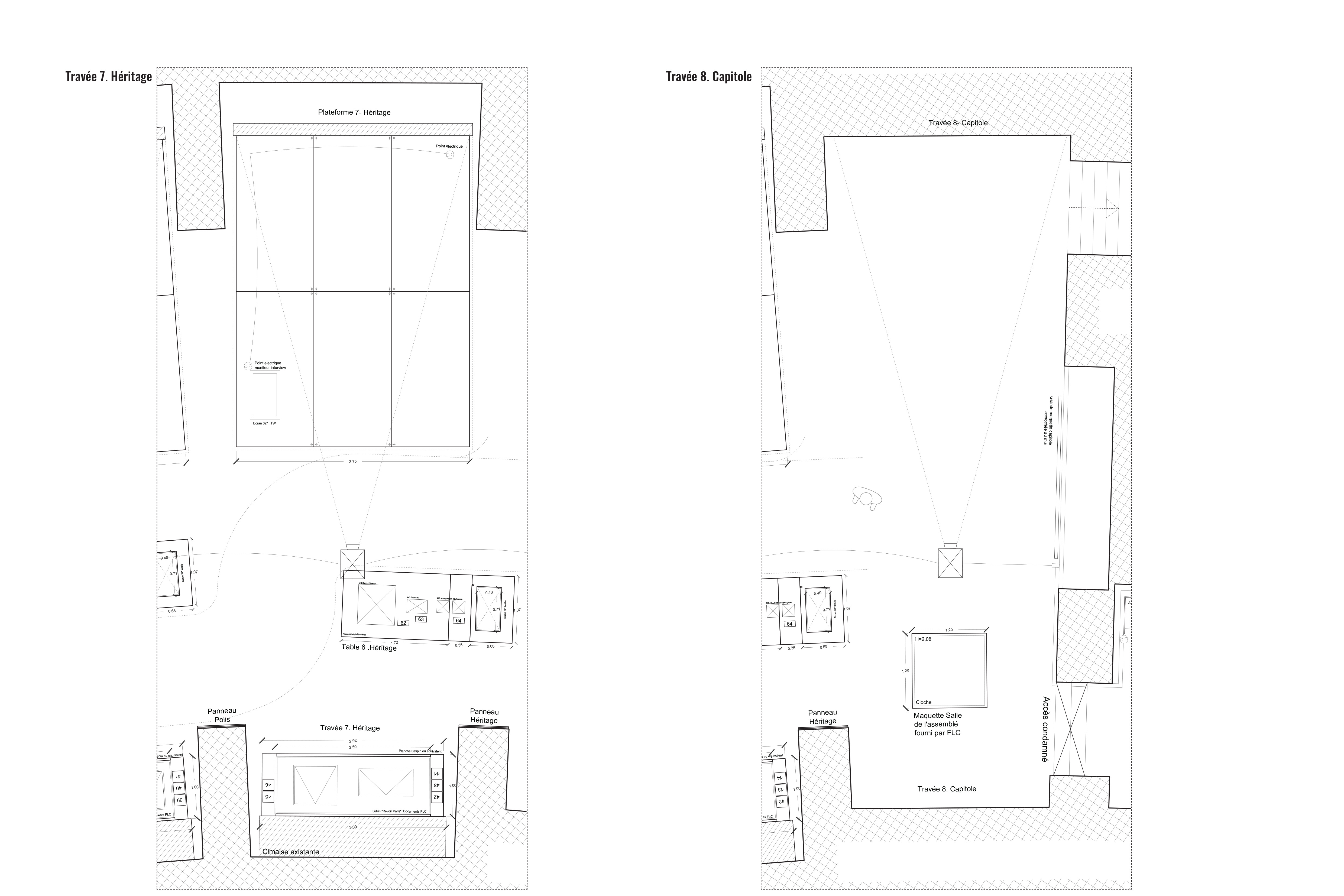
Dossier d’exécution et montage de l’exposition