L’exposition « Sports, portrait d’une métropole », présentée au Pavillon de l’Arsenal en 2014, a été l’occasion d’élaborer une réflexion sur une autre scénographie conçue ici pour donner à voir et à comprendre comment le sport contemporain et ses espaces contribuent à construire le territoire du Grand Paris.
L’objectif était d’évoquer les interrelations entre la société et la disposition des espaces sportifs dans la métropole, d’observer l’organisation d’espaces urbains spécifiques liés à la pratique des activités physiques dans la métropole et son espace public. Nous souhaitions ainsi mettre en exergue les relations qui existent entre l’espace du sport au sens large et l’évolution des mœurs et la place du corps dans la société urbaine contemporaine.
Il s’agissait de rendre compte à la fois des dispositifs existants et des usages, tout comme de laisser entrevoir, à travers d’un travail prospectif, la place des activités sportives dans les projets urbains à venir…
Les conditions locales – l’ancien entrepôt rénové en « pavillon » d’exposition pour la direction de l’Architecture de la Ville de Paris – furent ici aussi déterminantes dans la constitution du dispositif visuel, issu d’une recherche d’une interaction fertile entre la structure de l’espace d’exposition et son contenu.
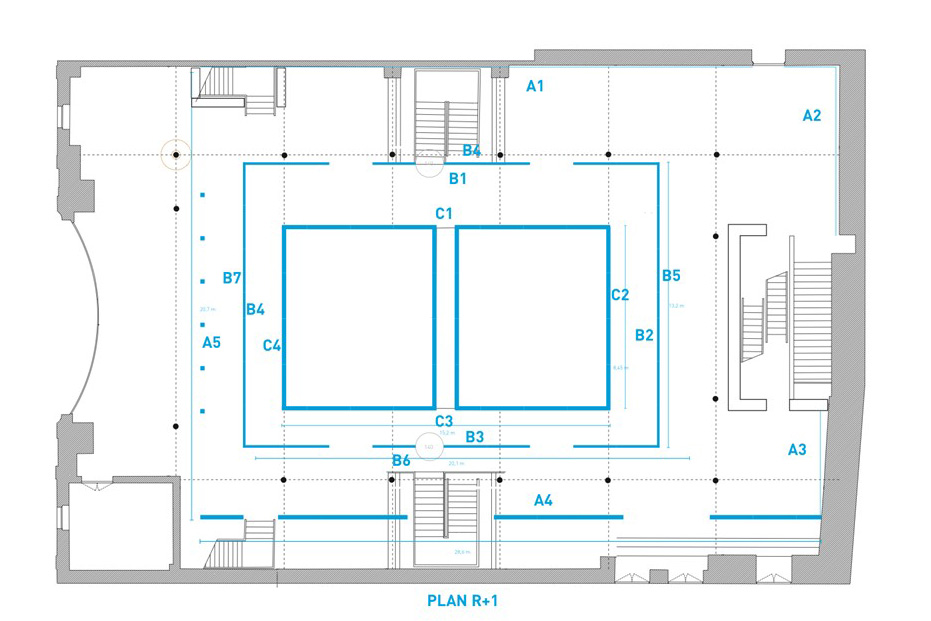
La galerie d’exposition du Pavillon de l’Arsenal est située au premier étage d’un ancien hangar rectangulaire. Elle tourne autour d’un vide central éclairé par la lumière naturelle zénithale d’une verrière disposée au sommet de la charpente à deux versants. Une certaine dramaturgie spatiale organise déjà ce lieu conçu par Reichen et Robert en 1988, dans le sens où au rez-de-chaussée plutôt sombre succède l’étage lumineux d’une plate-forme qui offre des points de vue sur au moins trois paysages : deux à l’intérieur – l’un sur les cimaises tournantes de la galerie, l’autre sur le parterre situé en contrebas – le troisième étant la vue extérieure sur la ville, que l’on perçoit à travers la fenêtre thermale. L’organisation de cet espace, avec son balcon et son orchestre, est théâtrale et ordonne les relations sociales des soirées de vernissage dans des jeux de regards entre voir et être vu, entre montrer et cacher.
Proche d’un système panoptique comme d’une enceinte sportive, l’ensemble est déjà aménagé de telle sorte que d’un point de la galerie on puisse voir ou entrapercevoir la plus grande partie de l’intérieur du Pavillon. La décision fut prise de renforcer ce principe par la réalisation d’un enclos rectangulaire central de cimaises en bois clair. Celui-ci définit deux galeries enchâssées l’une dans l’autre autour du vide central.
La galerie extérieure, formant le vestibule de l’exposition, recueille les grands sujets de réflexion et les projets concernant les relations spécifiques de l’espace du sport à la ville sous forme de cartes et de plans et d’accrochages verticaux d’atlas photographiques. Y sont abordées, la question du territoire et la capacité que peut avoir le sport à stimuler les stratégies politiques d’aménagement à grande échelle, la relation que la pratique des activités physiques établit avec son milieu environnemental, la question du sport-spectacle et la place des grandes machines sportives dans la ville, la pratique des sports institutionnels et informels dans l’espace public urbain. Enfin, en guise de conclusion et de prospective, toujours sous la forme d’atlas photographies, cette partie de l’exposition ouvre des perspectives de réflexion sur l’architecture elle-même et ses particularités programmatiques et spatiales.
La galerie intérieure est conçue comme un espace rectangulaire panoramique qui se laisse embrasser d’un seul regard depuis l’escalier montant à la plate-forme. Sur cette cimaise quadrangulaire sont présentées vingt-sept figures axonométriques exemplaires des rapports qu’une pratique sportive peut entretenir avec l’espace métropolitain. Les conventions graphiques de ces perspectives militaires sont identiques : figures au trait noir sur papier blanc avec un même angle plongeant. Chaque figure est ainsi guidée par la même quête : celle de constituer une vue totalisante inscrivant chaque terrain de jeu ou de sport dans un contexte urbain, en leur accordant une valeur qualitative identique dans la fabrication de la ville, par le truchement d’une représentation géométrique dont les huit échelles retenues permettent de donner, sur les panneaux, une taille équivalente à des équipements aussi dissemblables qu’un stade de football de 40 000 places ou une piste de skate construite dans le jardin d’un maison pavillonnaire. L’ensemble de ces documents de près d’un mètre carré constitue de la sorte une collection unifiée de terrains de jeux remarquables, malgré leur nature et leurs formes très diverses.
La juxtaposition de ces images forme un collage, une chaîne alternant documents et espacements se déployant sur les quatre faces intérieures de la cimaise. À la dernière image succède la première et ainsi de suite… Cette frise évoque une figure emblématique de la représentation des villes : le panorama, celui d’une ouverture au monde mais un monde réduit à une réalité représentable qui inscrit son infinité dans le quotidien, comme a pu l’écrire Didi-Huberman.
Ce panorama retranscrit un voyage en Île-de-France mettant en exergue des situations urbaines et les pratiques sportives exemplaires qui s’y développent. Il procède d’une esthétique de la mise à plat par l’axonométrie qui, modérant le sentiment – l’émoi, le ravissement –, suscite une prise de conscience d’ordre documentaire. Le dispositif raconte une histoire, mais aussi une leçon à tirer de l’observation du sport et du jeu dans la ville contemporaine. Il est une manière d’exposer le monde du sport dans la ville tout comme l’architecture prend en compte le sport lui-même comme une chose à voir avec ses stades, ses gradins, etc.
Mais le panorama « sportif » imaginé pour l’Arsenal est bien différent de celui inventé à la fin du XVIIIe siècle par le peintre anglais Robert Baker et développé par l’Américain Robert Fulton. Il n’est pas ce procédé qui crée l’illusion d’une vision réelle à partir d’une toile peinte de forme arrondie observée depuis le point central de la construction perspective et éclairée par le haut. Ce panorama-là participait à la construction de l’universel, à la célébration d’une ode à l’universalité propre au XIXe siècle[1], avant d’être détrôné par l’invention du cinéma.
L’héritage de notre temps ne relève-t-il pas plutôt de la « dislocation du monde », comme l’énonçait Didi-Huberman et avant lui Brecht et Benjamin ? À quoi répondent dans le domaine des arts comme dans celui de la pensée, toujours selon Didi-Huberman, une esthétique et une épistémologie du montage.
Le monde et la métropole ne peuvent plus être perçus depuis un seul point de vue. On ne peut saisir d’un seul coup d’œil, comme dans un peep-show, la variété des mondes et d’une métropole comme celle de Paris. Google Maps et Google Earth ne peuvent qu’en donner l’illusion par la continuité des zooms, où tout s’enchaîne, s’encastre, s’emboîte parfaitement, harmonieusement. À Paris, la bonne gestion comme la bonne gouvernance s’appliquent à régler le rapport des parties au tout aussi harmonieusement et efficacement que possible. Comme une poupée russe, où « chacune se loge sans discussion dans une plus grande et en comprend d’autres plus petites, toujours sans forcer ». C’est le Paris visible. C’est le Paris géré[2].
C’est cette vision de Paris que la Ville de Paris offre d’ailleurs aux visiteurs du Pavillon de l’Arsenal sur le parterre du rez-de-chaussée. « On cède à la tentation de remplacer la politique par la gestion et l’exercice de la démocratie par l’horrible mot de “gouvernance” », écrit Bruno Latour. Alors que « c’est le Paris invisible, le Paris politique, celui à composer » que nous aurions envie de voir.
Comment faire alors? Dans son texte Paris, ville invisible, Bruno Latour propose, « pour rendre l’espace un peu plus réaliste », de se tourner non pas « vers une carte [ou une photographie], quel que soit le nombre de ses pixels, mais vers les oligoptiques ». Par ce néologisme Bruno Latour « désigne les étroites fenêtres qui permettent de se relier, par un certain nombre de conduits étroits, à quelques aspects seulement des êtres (humains et non humains) dont l’ensemble compose la ville »… Il s’agit alors de « basculer de l’illusion des panoptiques au parcours des oligoptiques ». Parce qu’il est essentiel de « localiser » les visions totalisantes sur Paris[3]. C’est ce que nous avons partiellement essayé de faire avec l’exposition « Sports, portrait d’une métropole » : appréhender la métropole parisienne à travers la pratique du sport et l’espace qui lui est associé.
La boîte prismatique centrale reçoit donc « ces poupées disloquées flottant dans le plasma ouvertes aux controverses ». Vingt-sept axonométries qui forment un atlas de situations urbaines oligoptiques.
Les tracés au trait se focalisent, par leur simplification et leur manque assumé de nuance, sur le rapport physique entretenu avec l’environnement urbain. Il en est de même pour l’orientation et le cadrage, choisis spécifiquement pour chaque situation afin de rendre le message spatial plus clair. Ces dessins se veulent un moyen pour décrypter en profondeur l’espace du sport. Ils tentent de démontrer les relations entre le sport et la ville et la façon dont ces lieux et ces pratiques fabriquent celle-ci. Ils peuvent se lire à des échelles disparates, du plus grand au plus petit. La totalité de ces planches forme virtuellement un atlas de situations sportives remarquables.
Le dispositif, caractérisé par un mode de perception et dépendant d’un type d’espace, ne relève plus de l’immobilité du spectateur porteur d’un regard circulaire comme pour un panorama, mais, au contraire, requiert le déplacement du visiteur. L’assemblage des vues rapprochées invite à la marche, produisant la dynamisation de l’espace par une succession de représentations statiques. Dans cette boîte des multiples, le mouvement du corps, son déplacement, permet une lecture à la fois fragmentée et continue. L’objectif pédagogique et enchanteur du panoptique est toujours là, comme la recherche de l’émotion et de l’illusion. Mais le procédé est ici en pleine connaissance de cause contradictoire. Même volonté de mettre en œuvre un regard total et synthétique tout en acceptant l’impossibilité d’un tel projet.
[1]Michel Maffesoli, Les Panoramas, une vision aoristique du réel, in J’aime les panoramas, 176-180. Maffesoli rappelle le travail de Mona Ozouf qui a montré la volonté qu’ont eue les révolutionnaires de gommer les monuments et les repères spatio-temporels de l’Ancien Régime pour les remplacer par de nouvelles divisions de l’espace et du temps.
[2]Voir Bruno Latour, Paris, ville invisible : le plasma, entrée pour le catalogue de l’exposition: Airs de Paris, 30 ans du Centre Pompidou, sous la direction de Christine Macel, Daniel Birnbaum, Valérie Guillaume , ADGP, Paris, 2007 , pp. 260-263. Mais aussi www.bruno-latour.fr/node/243
[3]« Ouvrez maintenant toutes les poupées ; plongez-les dans le plasma, en laissant chacune d’elles définir ce qui est plus grand et ce qui est plus petit qu’elle, sans les ordonner par avance et en ouvrant toutes les controverses sur les rapports disputés des parties et du tout. » écrit Bruno Latour.
Pavillon de l’Arsenal
Sports
Portrait d’une métropole
Du 27 mai au 31 août 2014
Pavillon de l’Arsenal, 21 boulevard Morland, 75004 Paris
Exposition créée par Le Pavillon de l’Arsenal
Commissariat / Scénographie: Thierry Mandoul, NP2F architectes
Machine à voir : panorama versus oligoptique
L’exposition « Sports, portrait d’une métropole », présentée au Pavillon de l’Arsenal en 2014, a été l’occasion d’élaborer une réflexion sur une autre scénographie conçue ici pour donner à voir et à comprendre comment le sport contemporain et ses espaces contribuent à construire le territoire du Grand Paris.
L’objectif était d’évoquer les interrelations entre la société et la disposition des espaces sportifs dans la métropole, d’observer l’organisation d’espaces urbains spécifiques liés à la pratique des activités physiques dans la métropole et son espace public. Nous souhaitions ainsi mettre en exergue les relations qui existent entre l’espace du sport au sens large et l’évolution des mœurs et la place du corps dans la société urbaine contemporaine.
Il s’agissait de rendre compte à la fois des dispositifs existants et des usages, tout comme de laisser entrevoir, à travers d’un travail prospectif, la place des activités sportives dans les projets urbains à venir…
Les conditions locales – l’ancien entrepôt rénové en « pavillon » d’exposition pour la direction de l’Architecture de la Ville de Paris – furent ici aussi déterminantes dans la constitution du dispositif visuel, issu d’une recherche d’une interaction fertile entre la structure de l’espace d’exposition et son contenu.
La galerie d’exposition du Pavillon de l’Arsenal est située au premier étage d’un ancien hangar rectangulaire. Elle tourne autour d’un vide central éclairé par la lumière naturelle zénithale d’une verrière disposée au sommet de la charpente à deux versants. Une certaine dramaturgie spatiale organise déjà ce lieu conçu par Reichen et Robert en 1988, dans le sens où au rez-de-chaussée plutôt sombre succède l’étage lumineux d’une plate-forme qui offre des points de vue sur au moins trois paysages : deux à l’intérieur – l’un sur les cimaises tournantes de la galerie, l’autre sur le parterre situé en contrebas – le troisième étant la vue extérieure sur la ville, que l’on perçoit à travers la fenêtre thermale. L’organisation de cet espace, avec son balcon et son orchestre, est théâtrale et ordonne les relations sociales des soirées de vernissage dans des jeux de regards entre voir et être vu, entre montrer et cacher.
Proche d’un système panoptique comme d’une enceinte sportive, l’ensemble est déjà aménagé de telle sorte que d’un point de la galerie on puisse voir ou entrapercevoir la plus grande partie de l’intérieur du Pavillon. La décision fut prise de renforcer ce principe par la réalisation d’un enclos rectangulaire central de cimaises en bois clair. Celui-ci définit deux galeries enchâssées l’une dans l’autre autour du vide central.
La galerie extérieure, formant le vestibule de l’exposition, recueille les grands sujets de réflexion et les projets concernant les relations spécifiques de l’espace du sport à la ville sous forme de cartes et de plans et d’accrochages verticaux d’atlas photographiques. Y sont abordées, la question du territoire et la capacité que peut avoir le sport à stimuler les stratégies politiques d’aménagement à grande échelle, la relation que la pratique des activités physiques établit avec son milieu environnemental, la question du sport-spectacle et la place des grandes machines sportives dans la ville, la pratique des sports institutionnels et informels dans l’espace public urbain. Enfin, en guise de conclusion et de prospective, toujours sous la forme d’atlas photographies, cette partie de l’exposition ouvre des perspectives de réflexion sur l’architecture elle-même et ses particularités programmatiques et spatiales.
La galerie intérieure est conçue comme un espace rectangulaire panoramique qui se laisse embrasser d’un seul regard depuis l’escalier montant à la plate-forme. Sur cette cimaise quadrangulaire sont présentées vingt-sept figures axonométriques exemplaires des rapports qu’une pratique sportive peut entretenir avec l’espace métropolitain. Les conventions graphiques de ces perspectives militaires sont identiques : figures au trait noir sur papier blanc avec un même angle plongeant. Chaque figure est ainsi guidée par la même quête : celle de constituer une vue totalisante inscrivant chaque terrain de jeu ou de sport dans un contexte urbain, en leur accordant une valeur qualitative identique dans la fabrication de la ville, par le truchement d’une représentation géométrique dont les huit échelles retenues permettent de donner, sur les panneaux, une taille équivalente à des équipements aussi dissemblables qu’un stade de football de 40 000 places ou une piste de skate construite dans le jardin d’un maison pavillonnaire. L’ensemble de ces documents de près d’un mètre carré constitue de la sorte une collection unifiée de terrains de jeux remarquables, malgré leur nature et leurs formes très diverses.
La juxtaposition de ces images forme un collage, une chaîne alternant documents et espacements se déployant sur les quatre faces intérieures de la cimaise. À la dernière image succède la première et ainsi de suite… Cette frise évoque une figure emblématique de la représentation des villes : le panorama, celui d’une ouverture au monde mais un monde réduit à une réalité représentable qui inscrit son infinité dans le quotidien, comme a pu l’écrire Didi-Huberman.
Ce panorama retranscrit un voyage en Île-de-France mettant en exergue des situations urbaines et les pratiques sportives exemplaires qui s’y développent. Il procède d’une esthétique de la mise à plat par l’axonométrie qui, modérant le sentiment – l’émoi, le ravissement –, suscite une prise de conscience d’ordre documentaire. Le dispositif raconte une histoire, mais aussi une leçon à tirer de l’observation du sport et du jeu dans la ville contemporaine. Il est une manière d’exposer le monde du sport dans la ville tout comme l’architecture prend en compte le sport lui-même comme une chose à voir avec ses stades, ses gradins, etc.
Mais le panorama « sportif » imaginé pour l’Arsenal est bien différent de celui inventé à la fin du XVIIIe siècle par le peintre anglais Robert Baker et développé par l’Américain Robert Fulton. Il n’est pas ce procédé qui crée l’illusion d’une vision réelle à partir d’une toile peinte de forme arrondie observée depuis le point central de la construction perspective et éclairée par le haut. Ce panorama-là participait à la construction de l’universel, à la célébration d’une ode à l’universalité propre au XIXe siècle[1], avant d’être détrôné par l’invention du cinéma.
L’héritage de notre temps ne relève-t-il pas plutôt de la « dislocation du monde », comme l’énonçait Didi-Huberman et avant lui Brecht et Benjamin ? À quoi répondent dans le domaine des arts comme dans celui de la pensée, toujours selon Didi-Huberman, une esthétique et une épistémologie du montage.
Le monde et la métropole ne peuvent plus être perçus depuis un seul point de vue. On ne peut saisir d’un seul coup d’œil, comme dans un peep-show, la variété des mondes et d’une métropole comme celle de Paris. Google Maps et Google Earth ne peuvent qu’en donner l’illusion par la continuité des zooms, où tout s’enchaîne, s’encastre, s’emboîte parfaitement, harmonieusement. À Paris, la bonne gestion comme la bonne gouvernance s’appliquent à régler le rapport des parties au tout aussi harmonieusement et efficacement que possible. Comme une poupée russe, où « chacune se loge sans discussion dans une plus grande et en comprend d’autres plus petites, toujours sans forcer ». C’est le Paris visible. C’est le Paris géré[2].
C’est cette vision de Paris que la Ville de Paris offre d’ailleurs aux visiteurs du Pavillon de l’Arsenal sur le parterre du rez-de-chaussée. « On cède à la tentation de remplacer la politique par la gestion et l’exercice de la démocratie par l’horrible mot de “gouvernance” », écrit Bruno Latour. Alors que « c’est le Paris invisible, le Paris politique, celui à composer » que nous aurions envie de voir.
Comment faire alors? Dans son texte Paris, ville invisible, Bruno Latour propose, « pour rendre l’espace un peu plus réaliste », de se tourner non pas « vers une carte [ou une photographie], quel que soit le nombre de ses pixels, mais vers les oligoptiques ». Par ce néologisme Bruno Latour « désigne les étroites fenêtres qui permettent de se relier, par un certain nombre de conduits étroits, à quelques aspects seulement des êtres (humains et non humains) dont l’ensemble compose la ville »… Il s’agit alors de « basculer de l’illusion des panoptiques au parcours des oligoptiques ». Parce qu’il est essentiel de « localiser » les visions totalisantes sur Paris[3]. C’est ce que nous avons partiellement essayé de faire avec l’exposition « Sports, portrait d’une métropole » : appréhender la métropole parisienne à travers la pratique du sport et l’espace qui lui est associé.
La boîte prismatique centrale reçoit donc « ces poupées disloquées flottant dans le plasma ouvertes aux controverses ». Vingt-sept axonométries qui forment un atlas de situations urbaines oligoptiques.
Les tracés au trait se focalisent, par leur simplification et leur manque assumé de nuance, sur le rapport physique entretenu avec l’environnement urbain. Il en est de même pour l’orientation et le cadrage, choisis spécifiquement pour chaque situation afin de rendre le message spatial plus clair. Ces dessins se veulent un moyen pour décrypter en profondeur l’espace du sport. Ils tentent de démontrer les relations entre le sport et la ville et la façon dont ces lieux et ces pratiques fabriquent celle-ci. Ils peuvent se lire à des échelles disparates, du plus grand au plus petit. La totalité de ces planches forme virtuellement un atlas de situations sportives remarquables.
Le dispositif, caractérisé par un mode de perception et dépendant d’un type d’espace, ne relève plus de l’immobilité du spectateur porteur d’un regard circulaire comme pour un panorama, mais, au contraire, requiert le déplacement du visiteur. L’assemblage des vues rapprochées invite à la marche, produisant la dynamisation de l’espace par une succession de représentations statiques. Dans cette boîte des multiples, le mouvement du corps, son déplacement, permet une lecture à la fois fragmentée et continue. L’objectif pédagogique et enchanteur du panoptique est toujours là, comme la recherche de l’émotion et de l’illusion. Mais le procédé est ici en pleine connaissance de cause contradictoire. Même volonté de mettre en œuvre un regard total et synthétique tout en acceptant l’impossibilité d’un tel projet.
[1] Michel Maffesoli, Les Panoramas, une vision aoristique du réel, in J’aime les panoramas, 176-180. Maffesoli rappelle le travail de Mona Ozouf qui a montré la volonté qu’ont eue les révolutionnaires de gommer les monuments et les repères spatio-temporels de l’Ancien Régime pour les remplacer par de nouvelles divisions de l’espace et du temps.
[2] Voir Bruno Latour, Paris, ville invisible : le plasma, entrée pour le catalogue de l’exposition: Airs de Paris, 30 ans du Centre Pompidou, sous la direction de Christine Macel, Daniel Birnbaum, Valérie Guillaume , ADGP, Paris, 2007 , pp. 260-263. Mais aussi www.bruno-latour.fr/node/243
[3] « Ouvrez maintenant toutes les poupées ; plongez-les dans le plasma, en laissant chacune d’elles définir ce qui est plus grand et ce qui est plus petit qu’elle, sans les ordonner par avance et en ouvrant toutes les controverses sur les rapports disputés des parties et du tout. » écrit Bruno Latour.